text text text text

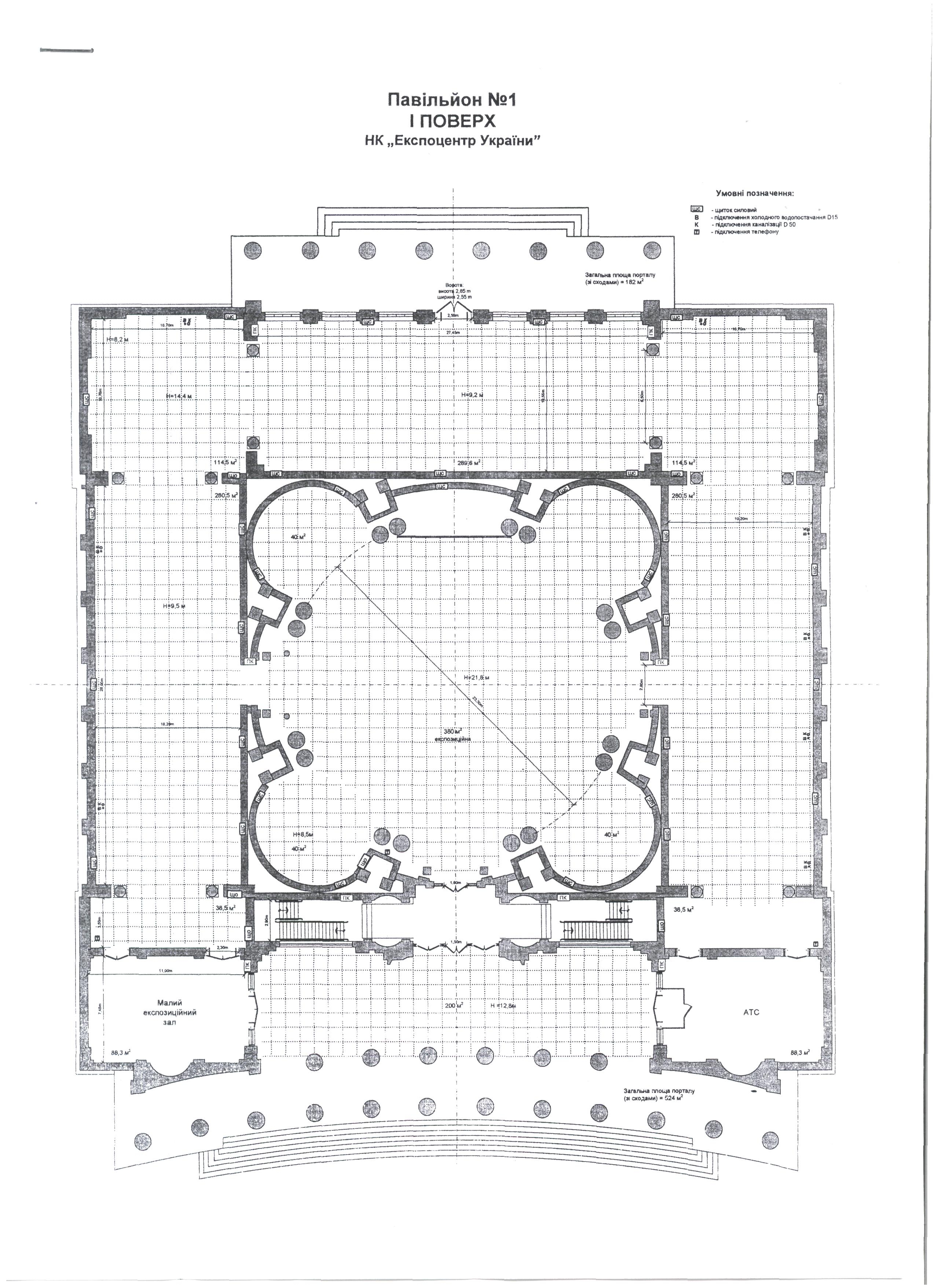
Павільйон №1

  • Розміри будівлі в плані
    • 59х52 м
  • Загальна площа
    • 2 340 м2
  • Експозиційна площа
    • 2 200 м2
    • 1 поверх – 1900 м2
    • 2 поверх – 300 м2
  • Висота стелі
    • центральна частина – 22,8 м
    • бічні частини – 9,5 м
  • Кількість аварійних виходів
    • 3
  • Габарити в’їзних вантажних воріт
    • 2,55 х 2,65 м
  • Інженерні комунікації
    • електроживлення 220/380 В
    • водопостачання
    • водовідведення
    • пожежна сигналізація
    • Wi-Fi - на замовлення
  • Допустимі навантаження на підлогу
    • 10 т/м2
  • Оренда
    • *вартість оренди уточнюйте у менеджера
  • Додаткові послуги
    • підключення до мережі води та каналізації
    • підключення до джерел електроенергії
    • замовлення автотранспорту
    • зовнішня реклама та навігація
    • надання інтернет-послуг
    • оренда обладнання, забудова виставок
    • фуд-корти
    • клінінг
    • послуги організації продажу квитків та касового обслуговування

Поле Ice Stage

  • Загальна площа
    • 28 000 м2
  • Оренда
    • *вартість оренди уточнюйте у менеджера
  • Додаткові послуги
    • замовлення автотранспорту
    • зовнішня реклама та навігація
    • оренда обладнання, забудова виставок
    • фуд-корти
    • клінінг
    • послуги організації продажу квитків та касового обслуговування

Павільйон №2

  • Розміри будівлі в плані
    • 49х40 м
  • Загальна площа
    • 1 055 м2
  • Експозиційна площа
    • 950 м2
  • Висота стелі
    • центральна частина – 11,3 м
    • бічні частини – 8,4 м
  • Кількість аварійних виходів
    • 4
  • Габарити в’їзних вантажних воріт
    • 2,7 х 2,25 м
  • Інженерні комунікації
    • електроживлення 220/380 В
    • водопостачання
    • водовідведення
    • пожежна сигналізація
    • Wi-Fi - на замовлення
  • Допустимі навантаження на підлогу
    • 8 т/м2
  • Оренда
    • *вартість оренди уточнюйте у менеджера
  • Додаткові послуги
    • підключення до мережі води та каналізації
    • підключення до джерел електроенергії
    • замовлення автотранспорту
    • зовнішня реклама та навігація
    • надання інтернет-послуг
    • оренда обладнання, забудова виставок
    • фуд-корти
    • клінінг
    • послуги організації продажу квитків та касового обслуговування

Відкрита площа біля павільйону №17

  • Загальна площа
    • 1 785 м2
  • Розміри
    • 51х35 м
  • Оренда
    • *вартість оренди уточнюйте у менеджера
  • Додаткові послуги
    • підключення до джерел електроенергії
    • замовлення автотранспорту
    • зовнішня реклама та навігація
    • надання інтернет-послуг
    • оренда обладнання, забудова виставок
    • фуд-корти
    • клінінг
    • послуги організації продажу квитків та касового обслуговування
  • ІНЖЕНЕРНІ КОМУНІКАЦІЇ
    • електроживлення 220/380 В

Павільйон №3

  • Розміри будівлі в плані
    • 48,5х32,4 м
  • Загальна площа
    • 1 185 м2
  • Експозиційна площа
    • 1000 м2
  • Висота стелі
    • центральна частина – 12,4 м
    • бічні частини – 8,3 м
  • Кількість аварійних виходів
    • 4
  • Габарити в’їзних вантажних воріт
    • 2,8 х 3,8м
  • Інженерні комунікації
    • електроживлення 220/380 В
    • водопостачання
    • водовідведення
    • пожежна сигналізація
    • Wi-Fi на замовлення
  • Допустимі навантаження на підлогу
    • 15 т/м2
  • Оренда
    • *вартість оренди уточнюйте у менеджера
  • Додаткові послуги
    • підключення до мережі води та каналізації
    • підключення до джерел електроенергії
    • замовлення автотранспорту
    • зовнішня реклама та навігація
    • надання інтернет-послуг
    • оренда обладнання, забудова виставок
    • фуд-корти
    • клінінг
    • послуги організації продажу квитків та касового обслуговування

Відкрита площа біля павільйону №19

  • Загальна площа
    • 1767 м 2
  • Розміри
    • 57х31 м
  • Додаткові послуги
    • підключення до мережі води та каналізації
    • підключення до джерел електроенергії
    • замовлення автотранспорту
    • зовнішня реклама та навігація
    • надання інтернет-послуг
    • оренда обладнання, забудова виставок
    • фуд-корти
    • клінінг
    • зелені зони
    • послуги організації продажу квитків та касового обслуговування
  • Оренда
    • *вартість оренди уточнюйте у менеджера
  • Інженерні комунікації
    • електроживлення 220/380 В
    • водопостачання
    • водовідведення

Павільйон №4

  • Розміри будівлі в плані
    • 49,2х35,8 м
  • Загальна площа
    • 1 165 м2
  • Експозиційна площа
    • 980 м2
  • Висота стелі
    • центральна частина – 7,05 м
    • бічні частини – 7,05 м
  • Кількість аварійних виходів
    • 3
  • Габарити в’їзних вантажних воріт
    • 3х2,25 м
  • Інженерні комунікації
    • електроживлення 220/380 В
    • водопостачання
    • водовідведення
    • пожежна сигналізація
    • охоронна сигналізація
    • Wi-Fi
  • Допустимі навантаження на підлогу
    • 8 т/м2
  • Оренда
    • *вартість оренди уточнюйте у менеджера
  • Додаткові послуги
    • підключення до мережі води та каналізації
    • підключення до джерел електроенергії
    • замовлення автотранспорту
    • зовнішня реклама та навігація
    • надання інтернет-послуг
    • оренда обладнання, забудова виставок
    • фуд-корти
    • клінінг
    • послуги організації продажу квитків та касового обслуговування

Сад бажань

  • Загальна площа
    • 18 000 м2
  • Оренда
    • *вартість оренди уточнюйте у менеджера
  • Додаткові послуги
    • підключення до джерел електроенергії
    • замовлення автотранспорту
    • зовнішня реклама та навігація
    • надання інтернет-послуг
    • оренда обладнання, забудова виставок
    • фуд-корти
    • клінінг
    • зелені зони
    • послуги організації продажу квитків та касового обслуговування
  • інженерні комунікації
    • електроживлення 220/380 В

Конференц зал Omni Campus (Павільон №5)

  • Розміри будівлі в плані
    • 15,45м*7,45м
  • Загальна площа
    • 115 м2
  • Висота стелі
    • 3,60 м
  • Кількість аварійних виходів
    • 3
  • Послуги
    • У вартість залу входить:
    • -куллер з водою
    • - екран
    • - проектор
    • - фліпчарт з блокнотом і маркерами
    • - мікрофон
    • - колонка з мікшером
    • - 7 столів, і 30 стільців з пюпітрами для тренінгів
    • розсадка можлива театром до 90 чол
    • *Послуги харчування оплачуються додатково
  • Інженерні комунікації
    • електроживлення 220/380 В
    • водопостачання
    • водовідведення
    • пожежна сигналізація
    • охоронна сигналізація(кнопка тривоги)
    • Wi-Fi

Павільйон №7

  • Розміри будівлі в плані
    • 81,5х40 м
  • Загальна площа
    • 1 665 м2
  • Експозиційна площа
    • 1 500 м2
  • Висота стелі
    • центральна частина – 17 м
    • бічні частини – 8,05 м
  • Кількість аварійних виходів
    • 5
  • Габарити в’їзних вантажних воріт
    • 3,5х3,0 м
  • Інженерні комунікації
    • електроживлення 220/380 В
    • водопостачання
    • водовідведення
    • пожежна сигналізація
    • охоронна сигналізація
    • Wi-Fi
  • Допустимі навантаження на підлогу
    • 10 т/м2
  • Оренда
    • *вартість оренди уточнюйте у менеджера
  • Додаткові послуги
    • підключення до мережі води та каналізації
    • підключення до джерел електроенергії
    • замовлення автотранспорту
    • зовнішня реклама та навігація
    • надання інтернет-послуг
    • оренда обладнання, забудова виставок
    • фуд-корти
    • клінінг
    • послуги організації продажу квитків та касового обслуговування

Павільйон №9

  • Розміри будівлі в плані
    • 84х42 м
  • Загальна площа
    • 3 010 м2
  • Експозиційна площа
    • 2 800 м2
  • Висота стелі
    • центральна частина – 15 м
    • бічні частини – 6,8 м
  • Кількість аварійних виходів
    • 10
  • Габарити в’їзних вантажних воріт
    • 3,7х3,65 м
  • Інженерні комунікації
    • електроживлення 220/380 В
    • водопостачання
    • водовідведення
    • пожежна сигналізація
    • охоронна сигналізація
    • Wi-Fi
  • Допустимі навантаження на підлогу
    • 15 т/м2
  • Оренда
    • *вартість оренди уточнюйте у менеджера
  • Додаткові послуги
    • підключення до мережі води та каналізації
    • підключення до джерел електроенергії
    • замовлення автотранспорту
    • зовнішня реклама та навігація
    • надання інтернет-послуг
    • оренда обладнання, забудова виставок
    • фуд-корти
    • клінінг
    • послуги організації продажу квитків та касового обслуговування

Павільйон №10

  • Розміри будівлі в плані
    • 39х39 м
  • Загальна площа
    • 920 м2
  • Експозиційна площа
    • 800 м2
  • Висота стелі
    • центральна частина – 13,4 м
    • бічні частини – 8 м
  • Кількість аварійних виходів
    • 2
  • Габарити в’їзних вантажних воріт
    • 2,4х2,8 м
  • Інженерні комунікації
    • електроживлення 220/380 В
    • водопостачання
    • водовідведення
    • пожежна сигналізація
    • охоронна сигналізація
    • Wi-Fi
  • Допустимі навантаження на підлогу
    • 8 т/м2
  • Оренда
    • *вартість оренди уточнюйте у менеджера
  • Додаткові послуги
    • підключення до мережі води та каналізації
    • підключення до джерел електроенергії
    • замовлення автотранспорту
    • зовнішня реклама та навігація
    • надання інтернет-послуг
    • оренда обладнання, забудова виставок
    • фуд-корти
    • клінінг
    • послуги організації продажу квитків та касового обслуговування

Павільйон №13

  • Розміри будівлі в плані
    • 45,5х37,5 м
  • Загальна площа
    • 670 м2
  • Експозиційна площа
    • 430 м2
  • Висота стелі
    • центральна частина – 7,2 м
  • Кількість аварійних виходів
    • 4
  • Габарити в’їзних вантажних воріт
    • 2,5х2,5 м
  • Інженерні комунікації
    • електроживлення 220/380 В
    • водопостачання
    • водовідведення
    • пожежна сигналізація
    • охоронна сигналізація
  • Допустимі навантаження на підлогу
    • 10 т/м2
  • Оренда
    • *вартість оренди уточнюйте у менеджера
  • Додаткові послуги
    • підключення до мережі води та каналізації
    • підключення до джерел електроенергії
    • замовлення автотранспорту
    • зовнішня реклама та навігація
    • надання інтернет-послуг
    • оренда обладнання, забудова виставок
    • фуд-корти
    • клінінг
    • послуги організації продажу квитків та касового обслуговування

Павільйон №19

  • Розміри будівлі в плані
    • 100х30 м
  • Загальна площа
    • 2 880 м2
  • Експозиційна площа
    • 2 800 м2
  • Висота стелі
    • центральна частина – 4,85 м
  • Кількість аварійних виходів
    • 4
  • Габарити в’їзних вантажних воріт
    • 3х4,4 м
  • Інженерні комунікації
    • електроживлення 220/380 В
    • водопостачання
    • водовідведення
    • пожежна сигналізація
    • охоронна сигналізація
  • Допустимі навантаження на підлогу
    • 3 т/м2
  • Оренда
    • *вартість оренди уточнюйте у менеджера
  • Додаткові послуги
    • підключення до мережі води та каналізації
    • підключення до джерел електроенергії
    • замовлення автотранспорту
    • зовнішня реклама та навігація
    • надання інтернет-послуг
    • оренда обладнання, забудова виставок
    • фуд-корти
    • клінінг
    • послуги організації продажу квитків та касового обслуговування

Павільйон №28 "Оранжерея" (зал, вільний від рослин)

  • Розміри будівлі в плані
    • 15,7х90,5 м
  • Загальна площа
    • 140 м2
  • Висота стелі
    • центральна частина – 6 м
  • Інженерні комунікації
    • електроживлення 220/380 В
    • водопостачання
  • Оренда
    • *вартість оренди уточнюйте у менеджера
  • Додаткові послуги
    • підключення до мережі води
    • підключення до джерел електроенергії
    • замовлення автотранспорту
    • зовнішня реклама та навігація
    • оренда обладнання, забудова виставок
    • фуд-корти
    • клінінг

Відкрита площа за павільйоном №1 (мінімальна)

  • Загальна площа
    • 5 015 м2
  • Інженерні комунікації
    • електроживлення 220/380 В
    • водопостачання
    • водовідведення
  • Розміри
    • 85х59 м
  • Оренда
    • *вартість оренди уточнюйте у менеджера
  • Додаткові послуги
    • підключення до мережі води та каналізації
    • підключення до джерел електроенергії
    • замовлення автотранспорту
    • зовнішня реклама та навігація
    • надання інтернет-послуг
    • оренда обладнання, забудова виставок
    • фуд-корти
    • клінінг
    • зелені зони
    • послуги організації продажу квитків та касового обслуговування

Центральна площа

  • Загальна площа
    • 10 320 м2
  • Розміри
    • 126x82м
  • Інженерні комунікації
    • електроживлення 220/380 В
    • водопостачання
    • водовідведення
  • Оренда
    • *вартість оренди уточнюйте у менеджера
  • Додаткові послуги
    • підключення до мережі води та каналізації
    • підключення до джерел електроенергії
    • замовлення автотранспорту
    • зовнішня реклама та навігація
    • надання інтернет-послуг
    • оренда обладнання, забудова виставок
    • фуд-корти
    • клінінг
    • послуги організації продажу квитків та касового обслуговування

*можлива оренда частини площі

Відкрита площа біля павільйону №3

  • Загальна площа
    • 2420 м 2
  • Розміри
    • 82х23 м
  • ІНЖЕНЕРНІ КОМУНІКАЦІЇ
    • електроживлення 220/380 В
    • водопостачання
    • водовідведення
  • Оренда
    • *вартість оренди уточнюйте у менеджера
  • Додаткові послуги
    • підключення до мережі води та каналізації
    • підключення до джерел електроенергії
    • замовлення автотранспорту
    • зовнішня реклама та навігація
    • надання інтернет-послуг
    • оренда обладнання, забудова виставок
    • фуд-корти
    • клінінг
    • послуги організації продажу квитків та касового обслуговування

Права сторона (площа між павільйонами 2, 4, 8, 6)

  • Загальна площа
    • 7650 м2
  • Розміри
    • 170х45 м
  • ІНЖЕНЕРНІ КОМУНІКАЦІЇ
    • електроживлення 220/380 В
    • водопостачання
    • водовідведення
  • Оренда
    • *вартість оренди уточнюйте у менеджера
  • Додаткові послуги
    • 2 басейни
    • підключення до мережі води та каналізації
    • підключення до джерел електроенергії
    • замовлення автотранспорту
    • зовнішня реклама та навігація
    • надання інтернет-послуг
    • оренда обладнання, забудова виставок
    • фуд-корти
    • клінінг
    • зелені зони
    • послуги організації продажу квитків та касового обслуговування

*можлива оренда частини площі

Ліва сторона (площа між павільйонами 3, 5, 7)

  • Загальна площа
    • 4830 м2
  • Розміри
    • 70х69 м
  • ІНЖЕНЕРНІ КОМУНІКАЦІЇ
    • електроживлення 220/380 В
    • водопостачання
    • водовідведення
  • Оренда
    • *вартість оренди уточнюйте у менеджера
  • Додаткові послуги
    • басейн
    • підключення до мережі води та каналізації
    • підключення до джерел електроенергії
    • замовлення автотранспорту
    • зовнішня реклама та навігація
    • надання інтернет-послуг
    • оренда обладнання, забудова виставок
    • фуд-корти
    • клінінг
    • зелені зони
    • послуги організації продажу квитків та касового обслуговування

Відкрита площа з навісом № 101

  • Загальна площа
    • 2 400 м2
  • Розміри
    • Стаціонарний навіс – 1200 м2
    • Відстань між колонами навісу – 10 м
  • ІНЖЕНЕРНІ КОМУНІКАЦІЇ
    • електроживлення 220/380 В
    • водопостачання
    • водовідведення
  • Оренда
    • *вартість оренди уточнюйте у менеджера
  • Додаткові послуги
    • підключення до мережі води та каналізації
    • підключення до джерел електроенергії
    • замовлення автотранспорту
    • зовнішня реклама та навігація
    • надання інтернет-послуг
    • оренда обладнання, забудова виставок
    • фуд-корти
    • клінінг
    • послуги організації продажу квитків та касового обслуговування

Відкрита площа з навісом № 102

  • Загальна площа
    • 2 400 м2
  • Розміри
    • Стаціонарний навіс – 1200 м2
    • Відстань між колонами навісу – 10 м
  • Інженерні комунікації
    • електроживлення 220/380 В
    • водопостачання
    • водовідведення
  • Оренда
    • *вартість оренди уточнюйте у менеджера
  • Додаткові послуги
    • підключення до мережі води та каналізації
    • підключення до джерел електроенергії
    • замовлення автотранспорту
    • зовнішня реклама та навігація
    • надання інтернет-послуг
    • оренда обладнання, забудова виставок
    • фуд-корти
    • клінінг
    • послуги організації продажу квитків та касового обслуговування

Навіс № 103

  • Загальна площа
    • 1 200 м2
  • Розміри
    • Стаціонарний навіс – 1200 м2
    • Відстань між колонами навісу – 10 м
  • Інженерні комунікації
    • електроживлення 220/380 В
    • водопостачання
    • водовідведення
  • Оренда
    • *вартість оренди уточнюйте у менеджера
  • Додаткові послуги
    • підключення до мережі води та каналізації
    • підключення до джерел електроенергії
    • замовлення автотранспорту
    • зовнішня реклама та навігація
    • надання інтернет-послуг
    • оренда обладнання, забудова виставок
    • фуд-корти
    • клінінг
    • послуги організації продажу квитків та касового обслуговування

Площа з фонтаном за пав.№9

  • Загальна площа
    • 1050 м 2
  • ІНЖЕНЕРНІ КОМУНІКАЦІЇ
    • електроживлення 220/380 В
    • водопостачання
    • водовідведення
  • Оренда
    • *вартість оренди уточнюйте у менеджера
  • Додаткові послуги
    • підключення до мережі води та каналізації
    • підключення до джерел електроенергії
    • замовлення автотранспорту
    • зовнішня реклама та навігація
    • надання інтернет-послуг
    • оренда обладнання, забудова виставок
    • фуд-корти
    • клінінг
    • зелені зони
    • послуги організації продажу квитків та касового обслуговування

Поле North Stage

  • Загальна площа
    • 4 300 м2
  • Оренда
    • *вартість оренди уточнюйте у менеджера
  • Додаткові послуги
    • підключення до мережі води та каналізації
    • замовлення автотранспорту
    • зовнішня реклама та навігація
    • оренда обладнання, забудова виставок
    • фуд-корти
    • клінінг
    • послуги організації продажу квитків та касового обслуговування

Конкурне поле (поле West Stage)

  • Загальна площа
    • 7 848 м 2
  • Розміри
    • 130,8х60 м
  • Оренда
    • *вартість оренди уточнюйте у менеджера
  • Додаткові послуги
    • Технічний персонал
    • Підключення електроживлення 220/380 В
    • Послуги організації продажу квитків та
    • касового обслуговування
    • Оренда обладнання,забудова заходів
    • Замовлення автотранспорту

Поле Night Stage

  • Загальна площа
    • 5 600 м2
  • Оренда
    • *вартість оренди уточнюйте у менеджера
  • Додаткові послуги
    • Послуги організації продажу квитків та
    • касового обслуговування
    • Оренда обладнання,забудова заходів
    • Зовнішня реклама, навігація
    • Замовлення автотранспорту

Поле East Stage

  • Загальна площа
    • 14 100 м2
  • Оренда
    • *вартість оренди уточнюйте у менеджера
  • Додаткові послуги
    • замовлення автотранспорту
    • зовнішня реклама та навігація
    • оренда обладнання, забудова виставок
    • фуд-корти
    • клінінг
    • послуги організації продажу квитків та касового обслуговування

Поле Main Stage

  • Загальна площа
    • 28 500 м2
  • Оренда
    • *вартість оренди уточнюйте у менеджера
  • Додаткові послуги
    • замовлення автотранспорту
    • зовнішня реклама та навігація
    • оренда обладнання, забудова виставок
    • фуд-корти
    • клінінг
    • послуги організації продажу квитків та касового обслуговування

Київ, Академіка Глушкова 1,
павільйон №30